OWNER
Hillsborough County Public Works, Florida
TYPE
Standalone, Transportation Safety & Mobility Project
LOCATION
Causeway Blvd from S Falkenburg Rd to US 301
STATUS
Design Complete (2026 January); Construction (2026 Fall)
PROJECT DESCRIPTION
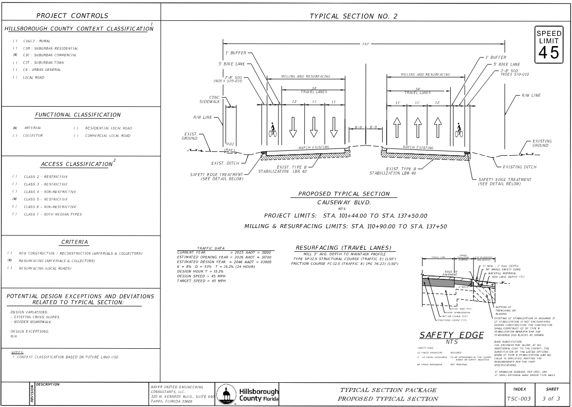
This project consisted of engineering and safety analyses, investigations, recommendations, to resurface and rehabilitate the 0.7-mile Causeway Blvd, a 6-lane divided roadway, classified as a C3C (Suburban/Commercial) and County Arterial. Review and safety recommendations were provided for the 61 crashes within the corridor; lane reductions were made so that a (1’) buffer and (5’) bike lane could be added; pavement design included an FDR and a standard option along with pavement markings, striping plans, and signage upgrades; all safety-focused improvements were approved by the County Engineer and Director via the Design Criteria & Deviation process. Quantities and specifications were in full compliance with the Hillsborough County Transportation Design Manual. A speed reduction memo was approved from 50 mph to 45 mph.
PROJECT PURPOSE
The contract supports the County’s ongoing pavement preservation efforts by enhancing roadway conditions, safety, school zone upgrades, and long-term performance.
PROJECT HIGHLIGHTS
BUEC was tasked primarily with resurfacing projects varying in design scope and making recommendations on the following:
-
Completed: Roadway/Resurfacing Projects going to Bid
-
Total Estimated Construction Costs: $1.53 Million
-
0.7-Mile Traffic Lane Miles Evaluated and designed for safety
-
6-Lane, Divided (30,500 AADT, 15.2% TT)
-
61 Crashes Reviewed and Analyzed for safety
-
~1.4 miles (WB & EB) of new 5’ Bike Lanes plus a 1’ buffer (w/ Green Paint)
-
Pavement Design per FDOT, including an FDR option
-
Pedestrian crossing improvements




